Eladó Önálló ház Hernád
Eladó Önálló ház - Hernád , R436768
Eladó Önálló ház
R436768
360 m²
5
Újszerű (5)
zöldudvar/kert
R436768
360 m²
5
Újszerű (5)
zöldudvar/kert
ÁLOMOTTHONT KERES? MEGTALÁLTA! PRÉMIUM LUXUS CSALÁDI HÁZ ELADÓ HERNÁDON – DABAS SZOMSZÉDSÁGÁBAN!
Ha nem kompromisszumot, hanem valódi minőséget keres, ez az ingatlan Önre vár. Hernád csendes, exkluzív részén, Dabas közvetlen közelében kínálunk megvételre egy minden részletében átgondolt, 360 m²-es, luxuskivitelű családi házat, amely egy 1500 m²-es, gyönyörűen parkosított telken helyezkedik el.
Ez nem csupán egy ház – ez egy életstílus.
KÜLTÉR – SAJÁT WELLNESS & ÉLMÉNYBIRODALOM:
Fűtött, tengervizes úszómedence ellenáramoltatóval
Kültéri zuhanyzó és háromrétegű, hőszigetelt üvegtető
Süllyesztett, hangulatos kerti kiülő sütögetővel
Prémium kültéri konyha szigettel, sütővel és vaslappal
Kerti szauna a teljes kikapcsolódásért
Külön épületben kialakított, teljesen felszerelt edzőterem (klíma, szellőztetés, TV, hangrendszer)
Automata öntözőrendszer fúrt kútról
Husqvarna Automower robotfűnyíró
Gondosan megtervezett díszvilágítás
TERASZ & KÖZÖSSÉGI TEREK:
80 m²-es zárt terasz (télikertként is használható), kandallóval és pizzasütővel
Emeleten 90 m²-es körpanorámás terasz
BELSŐ TÉR – ELEGANCIA ÉS FUNKCIONALITÁS:
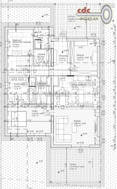
Tágas amerikai konyhás nappali
4 nagy méretű szoba
3 exkluzív fürdőszoba
Szülői háló saját fürdővel és gardróbbal
Emeleti gardróbszoba
Design konyha rejtett szagelszívóval és LED világítással.
MŰSZAKI TARTALOM – A JÖVŐ OTTHONA:
Levegő-víz hőszivattyús fűtés-hűtés
Padlófűtés minden helyiségben
Napelem rendszer
Klíma és központi levegőkeringetés
300 literes melegvíz bojler
Automata víztisztító rendszer
Elektromos redőnyök
Huawei 3 fázisú, 22 kW-os elektromos autó töltő
2 állásos gépkocsibeálló + kerti tároló.
BIZTONSÁG – MAXIMÁLIS VÉDELEM:
Teljes körű, professzionális vagyonvédelem
HikVision kamerarendszer (5 kamera, ebből 1 kihangosítható)
HikVision kaputelefon
24 órás távfelügyeletre kötött biztonsági rendszer
Paradox hőérzékelők
Mozgás- és nyitásérzékelők minden helyiségben és nyílászárón
Ujjlenyomatos és kódos prémium Marshall bejárati ajtó.
EXTRA:
Az ár tartalmazza a teljes bútorzatot és az edzőterem gépeit is – Önnek csak költöznie kell.
Ez az ingatlan minden részletében hibátlan, igényes, ízléses és kompromisszummentes. Ritka lehetőség azok számára, akik azonnal élvezni szeretnék a luxus kényelmét.
Ne maradjon le róla – hívjon bizalommal, és nézze meg személyesen ezt a páratlan otthont!
Alapadatok |
||
| Azonosító | R436768 | |
| Ingatlan típusa | Önálló ház | |
| Megbízás típusa | Eladó | |
| Irányár | 329 000 000 Ft | |
| Négyzetméter ár | 913 889 Ft | |
| Hely | Hernád | |
| Nézet | zöldudvar/kert | |
Kapcsolat |
||
| Telefonszám | (70)977-7820 | |
| Amennyiben szeretné, hogy felvegyük Önnel a kapcsolatot, kérjük, hívja a megadott telefonszámot. A kapcsolatfelvétel során rögzíteni fogjuk az Ön nevét, telefonszámát és email címét. | ||
| Iroda | Dabasi iroda | |
| Telefonszám (iroda) | (29)361-049 | |
| Amennyiben szeretné, hogy felvegyük Önnel a kapcsolatot, kérjük, hívja a megadott telefonszámot. A kapcsolatfelvétel során rögzíteni fogjuk az Ön nevét, telefonszámát és email címét. | ||
Terület |
||
| Hivatalos alapterület | 360 m² | |
| Telekterület | 1500 m² | |
Egyebek |
||
| Fűtés | hőszivattyú | |
| Fény | napfényes | |
Épület |
||
| Épült | 2020 | |
| Szerkezet | tégla | |
| Lift | nincs | |
| Megjegyzés | ÁLOMOTTHONT KERES? MEGTALÁLTA! PRÉMIUM LUXUS CSALÁDI HÁZ ELADÓ HERNÁDON – DABAS SZOMSZÉDSÁGÁBAN! Ha nem kompromisszumot, hanem valódi minőséget keres, ez az ingatlan Önre vár. Hernád csendes, exkluzív részén, Dabas közvetlen közelében kínálunk megvételre egy minden részletében átgondolt, 360 m²-es, luxuskivitelű családi házat, amely egy 1500 m²-es, gyönyörűen parkosított telken helyezkedik el. Ez nem csupán egy ház – ez egy életstílus. KÜLTÉR – SAJÁT WELLNESS & ÉLMÉNYBIRODALOM: Fűtött, tengervizes úszómedence ellenáramoltatóval Kültéri zuhanyzó és háromrétegű, hőszigetelt üvegtető Süllyesztett, hangulatos kerti kiülő sütögetővel Prémium kültéri konyha szigettel, sütővel és vaslappal Kerti szauna a teljes kikapcsolódásért Külön épületben kialakított, teljesen felszerelt edzőterem (klíma, szellőztetés, TV, hangrendszer) Automata öntözőrendszer fúrt kútról Husqvarna Automower robotfűnyíró Gondosan megtervezett díszvilágítás TERASZ & KÖZÖSSÉGI TEREK: 80 m²-es zárt terasz (télikertként is használható), kandallóval és pizzasütővel Emeleten 90 m²-es körpanorámás terasz BELSŐ TÉR – ELEGANCIA ÉS FUNKCIONALITÁS: Tágas amerikai konyhás nappali 4 nagy méretű szoba 3 exkluzív fürdőszoba Szülői háló saját fürdővel és gardróbbal Emeleti gardróbszoba Design konyha rejtett szagelszívóval és LED világítással. MŰSZAKI TARTALOM – A JÖVŐ OTTHONA: Levegő-víz hőszivattyús fűtés-hűtés Padlófűtés minden helyiségben Napelem rendszer Klíma és központi levegőkeringetés 300 literes melegvíz bojler Automata víztisztító rendszer Elektromos redőnyök Huawei 3 fázisú, 22 kW-os elektromos autó töltő 2 állásos gépkocsibeálló + kerti tároló. BIZTONSÁG – MAXIMÁLIS VÉDELEM: Teljes körű, professzionális vagyonvédelem HikVision kamerarendszer (5 kamera, ebből 1 kihangosítható) HikVision kaputelefon 24 órás távfelügyeletre kötött biztonsági rendszer Paradox hőérzékelők Mozgás- és nyitásérzékelők minden helyiségben és nyílászárón Ujjlenyomatos és kódos prémium Marshall bejárati ajtó. EXTRA: Az ár tartalmazza a teljes bútorzatot és az edzőterem gépeit is – Önnek csak költöznie kell. Ez az ingatlan minden részletében hibátlan, igényes, ízléses és kompromisszummentes. Ritka lehetőség azok számára, akik azonnal élvezni szeretnék a luxus kényelmét. Ne maradjon le róla – hívjon bizalommal, és nézze meg személyesen ezt a páratlan otthont! | |
Helyiségek |
||
| Szobák száma (kialakítható szobaszám) | 5 (6) | |
| Belső szintek | 1 | |
| Név | Méret | Félszoba | Különbejárat | Nézet | Tájolás | ||||||
| Szoba | 0 | Nem | Nincs | ||||||||
| Szoba | 0 | Nem | Nincs | ||||||||
Állapot |
||
| Ingatlan | Újszerű (5) | |
| Ház kívül | Újszerű (5) | |
| Ház belül | Újszerű (5) | |
Extrák |
||
| Szauna | van | |
| Medence | van | |
| Fittness | van | |
| Riasztó | van | |
| Közös kert | van | |
| Játszótér | van | |
| Klíma | van | |
| Redőny | van | |
| Maradandó ingóságok | minden | |
További információk |
||
| Parkolóhely | dupla | |
| Parkolási lehetőség | Parkoló zónán kívül | |
Ilyen méretű ingatlanok
Környéken levő ingatlanok
Hasonló ingatlanok
Expressz kapcsolatfelvétel
Várjuk jelentkezését ingatlanközvetítéssel kapcsolatban:
- Amennyiben értékesíteni kívánt ingatlana (ház, lakás, telek, kereskedelmi ingatlan) van Budapesten (akár Buda, vagy Pest kerületeiben), vagy az ország más területein,
- Kiadó ház, lakás, albérlet ügyben,
- Otthonteremtéssel kapcsolatos tanácsadás, akár hitelmegoldásokkal,
- Ha ingatlant vásárolna – ház, lakás, telek, kereskedelmi ingatlan stb…
Amennyiben segítségére lehetünk ingatlan eladásában, vásárlásában, kiadásában és bérlésében, úgy kérjük töltse ki az alábbi adatlapot, hogy munkatársunk felvegye a kapcsolatot Önnel!
Az adatlap kitöltésével Ön hozzájárul személyes adatainak kapcsolattartási célból történő kezeléséhez. A hozzájárulás visszavonását Ön kezdeményezheti az Önnel kapcsolatot tartó értékesítőnél, illetve amennyiben a személyes kapcsolatfelvétel még nem történt meg, a cdci@cdci.hu email címen. Az adatkezeléshez kapcsolódó jogairól az Adatvédelmi Tájékoztatónk ad részletes felvilágosítást.



















